coastal
apartments
RESIDENTIALCoastal Apartments
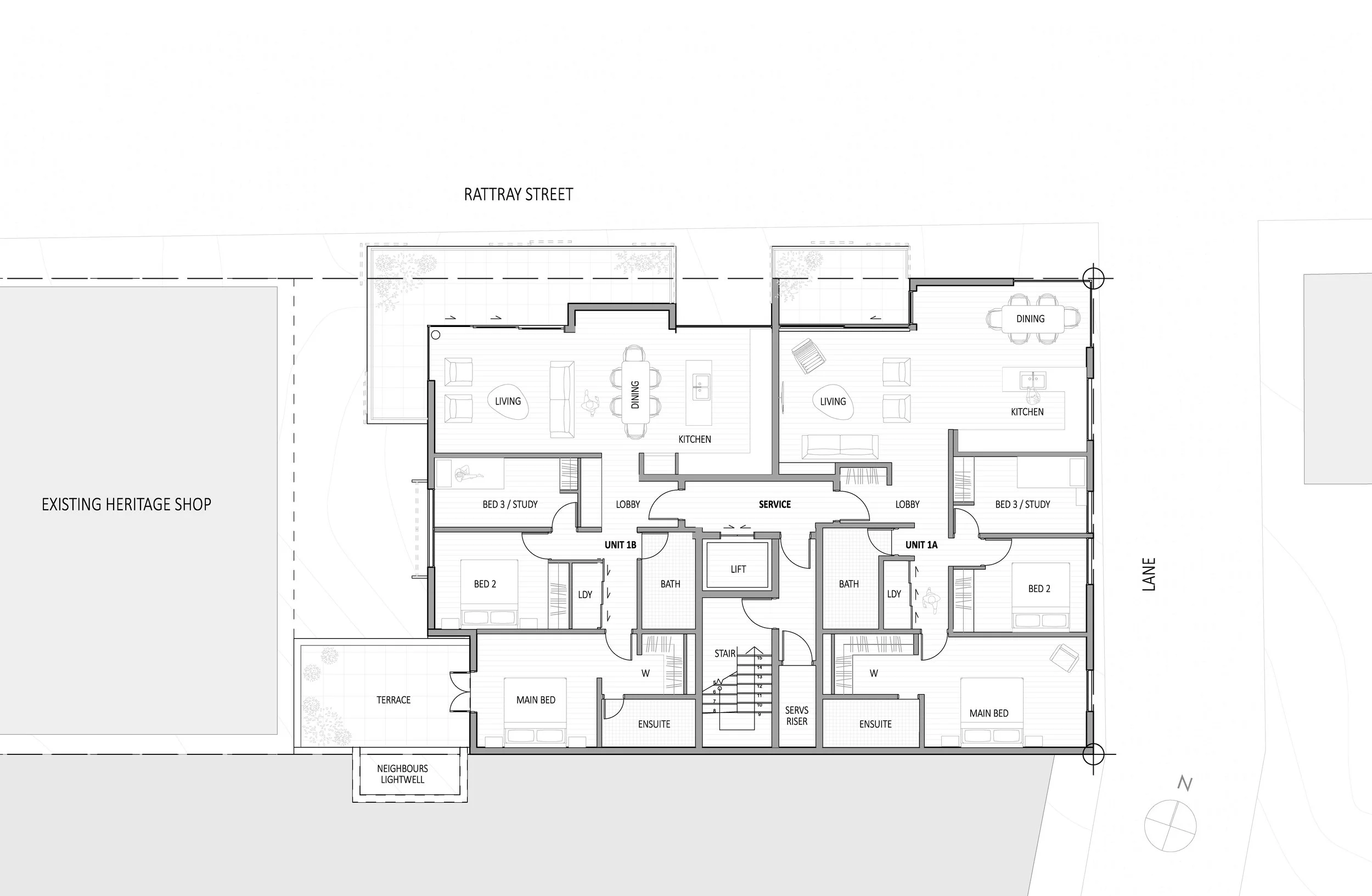
Coastal apartments in collaboration with KDA is a multi-storey, mixed-use residential proposal in the heart of a relaxed bayside heritage village - only a 10 min ferry ride away from the CBD. The apartments enjoy views up towards the local maunga and across to the Waitemata harbour and city scape. Ground floor retail and hospitality spaces activates and enlivens the village alongside the collection of local boutiques. There are 7 apartments of 2 or 3 comfortably sized bedroom units across 5 stories. Residents can also enjoy the communal roof top terrace. The building called for a careful consideration of planning, material palate and massing, sensitive to its heritage context.
Renders: A12

